Powys Court, Borehamwood - 2 Bedrooms House - Semi-Detached For Sale £450,000


Property Description

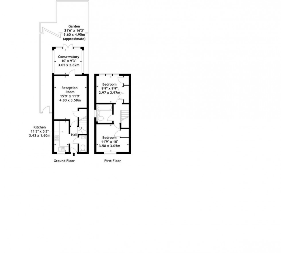
Step inside this beautifully presented and modern two double bedroom semi-detached home, ideally situated within a quiet cul-de-sac in the highly sought-after Kensington Way development in Borehamwood.

As you enter the property, you are welcomed into a bright entrance hallway. Immediately to your left is the modern fitted kitchen, positioned at the front of the home and thoughtfully designed to offer both practicality and style.

Continuing through, you are led into a spacious reception room, providing a comfortable and inviting living space with views over the garden. This area flows seamlessly into the conservatory, creating an additional versatile reception space ideal for dining, entertaining, or relaxing while enjoying the natural light and garden outlook. A convenient guest cloakroom completes the ground floor.

Upstairs, the property offers two generously sized double bedrooms, including a principal bedroom with fitted wardrobes, providing excellent storage. A modern fully tiled family bathroom serves both rooms and is finished to a high standard.

Externally, the property benefits from a private east-facing rear garden with side access, offering a peaceful and low-maintenance outdoor space. To the side of the property, there is allocated parking.

Conveniently located, the property is within easy reach of local shops, well-regarded schools, and excellent transport links, including the A1, A1(M), M25 and A41. Borehamwood town centre and mainline station are also nearby, providing fast and direct access into London, making this an ideal choice for commuters.

Location