Horizon Place,Studio Way, Borehamwood - 2 Bedrooms Flat - Purpose Built For Sale £335,000


Property Description

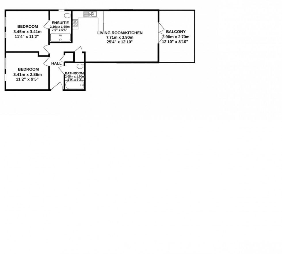
Welcome to this beautifully presented top-floor apartment in the highly sought-after Horizon Place development. Built in 2017, this modern, purpose-built home offers approximately 711 sq ft of thoughtfully designed living space.

Upon entering, you are welcomed by a spacious hallway featuring a useful storage cupboard and a secure entry phone system. Additional built-in storage and pantry space within the kitchen area provide practical solutions for everyday living. The apartment immediately impresses with its higher ceilings and top-floor position, creating a greater sense of space and natural light, along with the added benefit of having no neighbours above.

At the heart of the home is a bright and airy open-plan kitchen and living area, ideal for both relaxing and entertaining. The contemporary kitchen is fitted with modern appliances and a stylish breakfast bar, which flows seamlessly into the generous living space.

The property comprises two well-proportioned double bedrooms. The principal bedroom benefits from fitted wardrobes and a modern en-suite shower room, offering a comfortable and private retreat. A separate, well-appointed family bathroom serves the second bedroom and guests.

A standout feature is the private south-west facing balcony, providing the perfect outdoor space to enjoy afternoon and evening sun.

Further benefits include lift access and secure underground parking, ensuring both convenience and peace of mind, with a designated parking space that is allocated and private to the flat.

Ideally located, the apartment is just a five-minute walk from Borehamwood town centre, offering a wide range of shops, restaurants, and amenities. The Venue gym and swimming pool are only a two-minute walk away, and excellent transport links, including nearby London bus routes, make commuting straightforward.

This stylish and contemporary apartment presents a fantastic opportunity to acquire a modern home in a well-connected and desirable location.

Location