Theobald Street, Borehamwood - 4 Bedrooms House - Terraced For Sale £470,000


Property Description

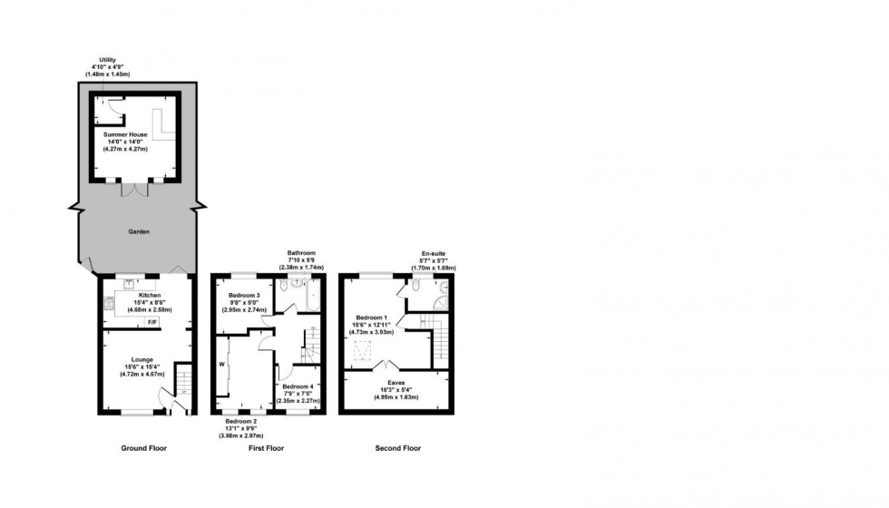
Set behind an attractive frontage, this four-bedroom terraced house on Theobald Street offers good living space and a convenient location close to local amenities. Built in the 1950s and extending to approximately 1,227 sq ft, the property is well suited to families or buyers looking for a well-connected area.

The ground floor comprises an entrance hall leading to a spacious dual-aspect reception/dining room, as well as a fitted kitchen with a range of units and worktop space, with access to the rear garden.

The first floor comprises three well-proportioned bedrooms and a family bathroom. The loft conversion provides an additional bedroom with an en-suite.

Outside, the property benefits from a private rear garden with a patio area, along with a summer house with air conditioning and internet, suitable for use as a home office or additional space.

The property is within walking distance of Borehamwood town centre, local schools, parks, and Elstree & Borehamwood Station, offering convenient access to local amenities and transport links.

Kitchen

Living Room

Bathroom

Ensuit

Garden

Front

Main Bedroom

2nd Bedroom

3rd bedroom

4th Bedroom

Location