Allerton Road, Borehamwood - 3 Bedrooms House For Sale £450,000


Property Description

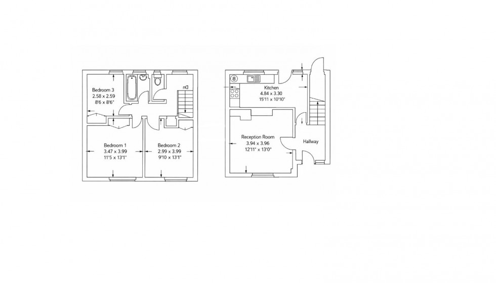
This charming three-bedroom family home combines 1950s character with modern-day practicality, offering well-balanced accommodation in a highly convenient location.

Upon entering, you are welcomed by a bright and spacious reception room, ideal for both everyday living and entertaining. To the rear, a light-filled kitchen/breakfast room provides a practical and sociable space, enjoying pleasant views over the garden.

The property benefits from three well-proportioned bedrooms, offering comfortable accommodation for families, guests, or those working from home. The bathroom is well maintained, and the home is presented in good order throughout, reflecting the care of its current owners.

Further features include a practical entrance porch with useful storage, off-street parking for multiple vehicles, and valuable side access to the rear garden.

Externally, the South East facing garden enjoys plenty of natural light, creating an ideal setting for outdoor dining and family enjoyment. The property also offers excellent potential to extend (STPP), presenting an exciting opportunity to further enhance and personalise the home.

Allerton Road is ideally positioned within easy reach of Borehamwood’s vibrant high street, excellent local amenities, well-regarded schools, and convenient transport links into central London.

Location