Horizon Place,Studio Way, Borehamwood - 2 Bedrooms Flat For Sale £325,000


Property Description

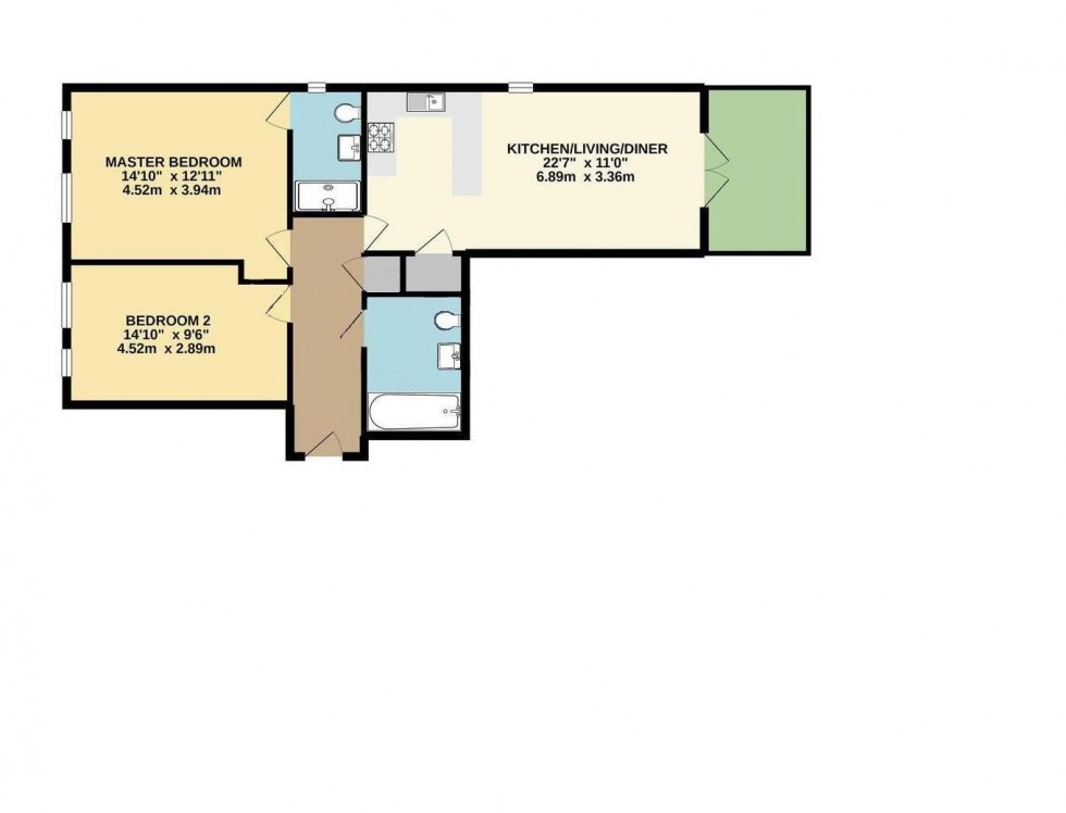
This spacious Fourth-floor apartment offers two double bedrooms, with the master bedroom featuring fitted wardrobes and an ensuite bathroom for added comfort and privacy. The property is designed for modern living, with a family bathroom in addition to the ensuite, providing stylish and practical bath/shower facilities for all residents.

As you enter, you’re greeted by a spacious hallway with additional storage cupboards, providing convenient space for your belongings. The large open-plan kitchen and living room provide an ideal space for both entertaining and relaxation. The kitchen is equipped with modern appliances and features a breakfast bar, while the bright, airy living area provides ample space for relaxation and entertaining.

A standout feature of this apartment is the private balcony, providing outdoor space to enjoy the beautiful surroundings. The apartment is part of a contemporary development, with lift access and secure underground parking for added peace of mind.

Located within a modern development, the apartment overlooks a beautifully landscaped green area, enhancing the appeal of its location. It’s just a 5-minute walk to Borehamwood town centre, where you’ll find a variety of shops, restaurants, and amenities. The Venue gym and swimming pool are only a 2-minute walk away, offering great convenience for fitness enthusiasts. Additionally, London bus links are easily accessible, providing excellent transport connections.

Location