Delius Close, Elstree - 4 Bedrooms House - Semi-Detached For Sale £600,000


Property Description

Situated on a quiet and friendly cul-de-sac in the heart of Elstree, this spacious 3/4 bedroom semi-detached house offers an excellent opportunity for buyers looking to create a home tailored to their own tastes. The property benefits from a generous footprint, a side extension, a large south-west facing garden, and excellent potential to modernise or extend further (subject to planning permission).

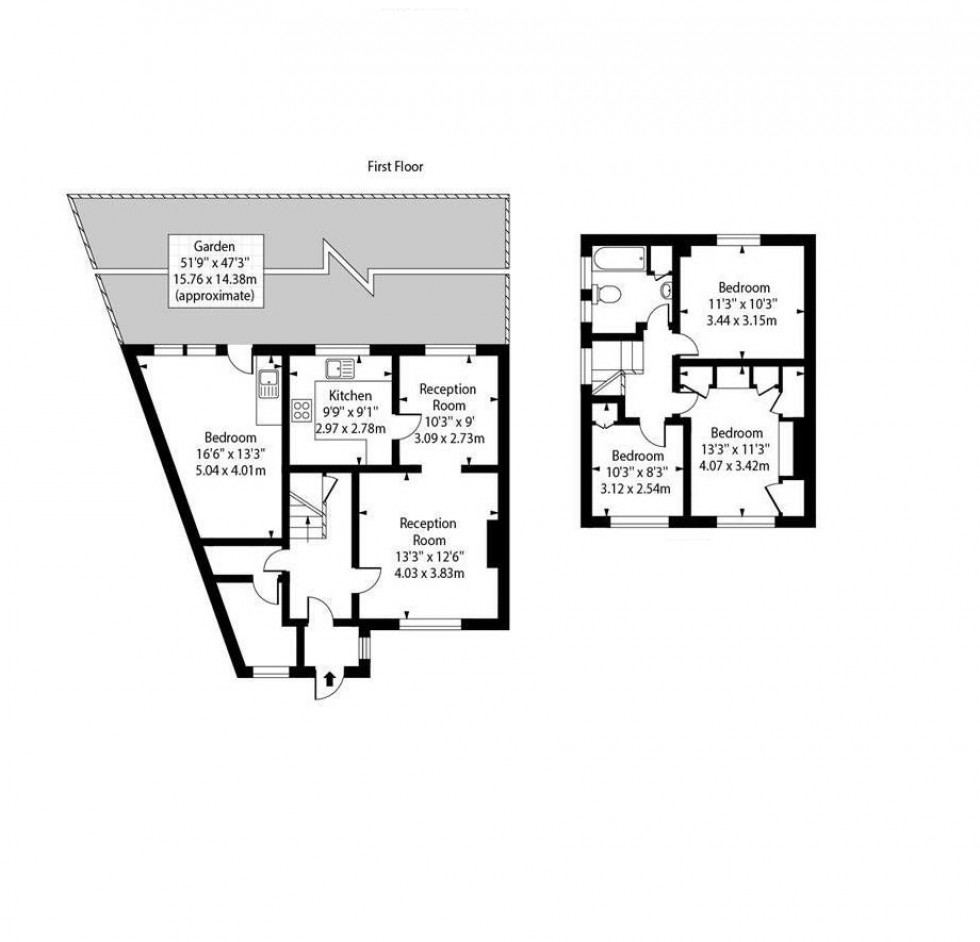
Upon entering, you’re welcomed via a useful porch into a spacious hallway, which leads through to a bright living/dining room. This main reception space is finished with charming parquet flooring and enjoys plenty of natural light, with direct access to the sunny rear garden – perfect for entertaining or family living. Adjacent to the living room is a separate kitchen, which offers scope to be reconfigured into an open-plan layout if desired.

The property benefits from a full-length side extension, currently arranged as an additional bedroom and bathroom, offering flexibility as a fourth bedroom, guest suite, home office, or playroom depending on your needs.

Upstairs, the house features three well-proportioned bedrooms, and a family bathroom. The layout is well-balanced and would suit both growing families and those looking to upsize.

Externally, the south-west facing rear garden is a real highlight, providing generous outdoor space for entertaining, or potential future enhancements.

Delius Close is a peaceful cul-de-sac in a highly sought-after location, ideally positioned for access to local amenities, highly regarded schools, and Elstree & Borehamwood Station, which provides fast and convenient rail links into central London. The

Location